CHUYÊN TRANG DEMO VIETDRAWING.COM
Feeds
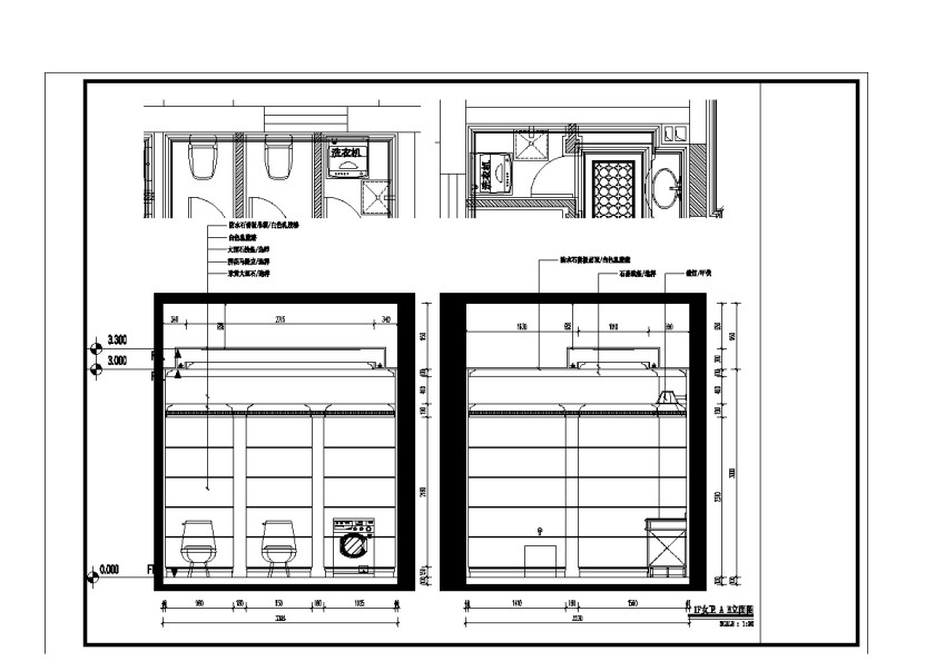
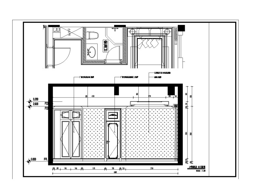
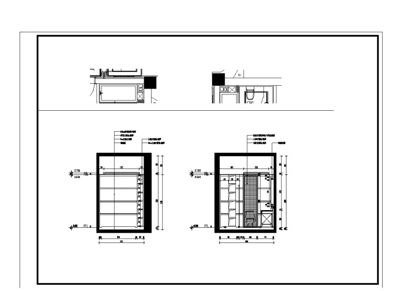
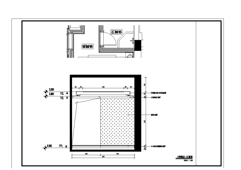
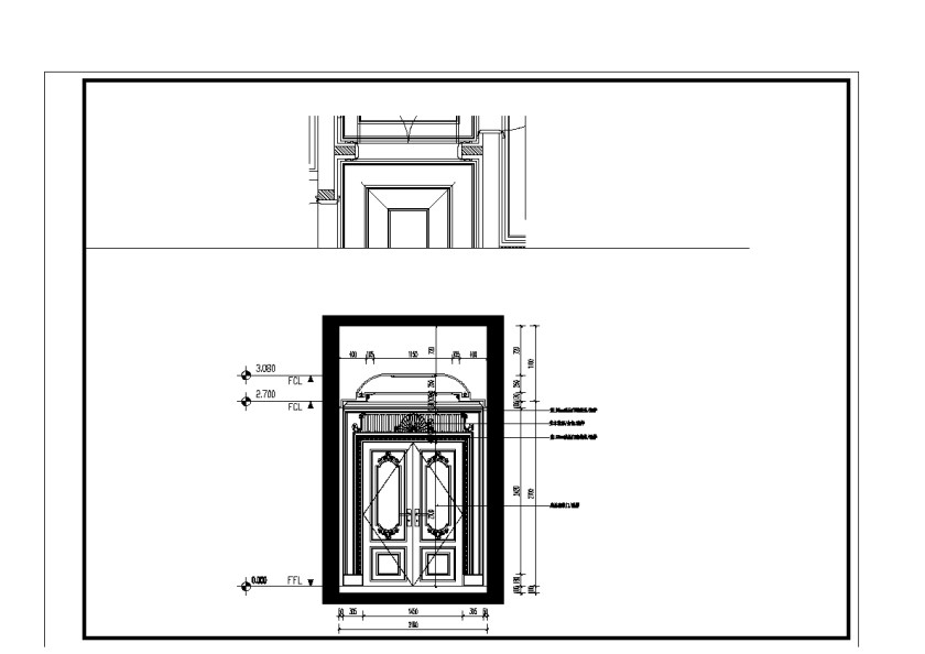
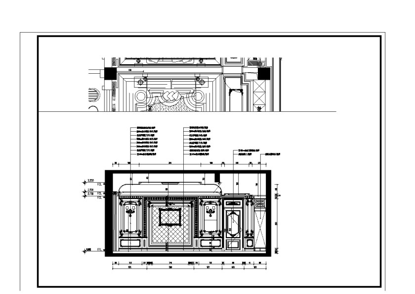
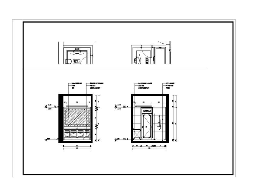
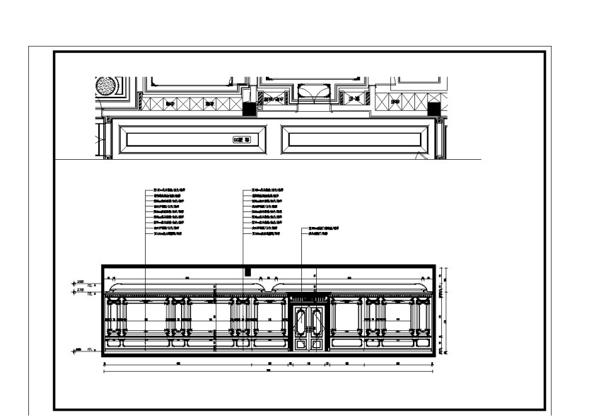
CADI013 – CAD FURNITURE VOL.2 – 5-DRAWINGS 01
§2052 · October 16, 2016 ·
Uncategorized
· · [
Print
]