CHUYÊN TRANG DEMO VIETDRAWING.COM
Feeds
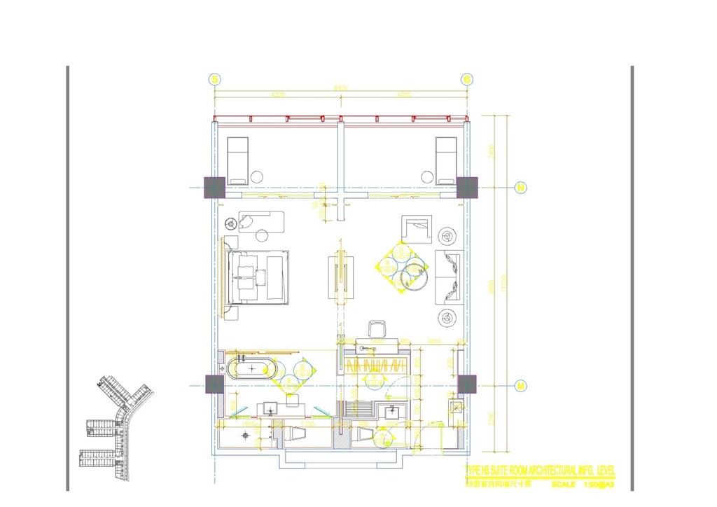
CADI-010: Hotel interior collection Vol.02
§2162 · December 5, 2016 ·
Uncategorized
· · [
Print
]
Pages:
1
2
3